Full Details
This charming two-bedroom main-door duplex apartment is set within the highly sought-after Newington area of Edinburgh. Recently redecorated throughout, it offers a stylish and welcoming home in true move-in condition.
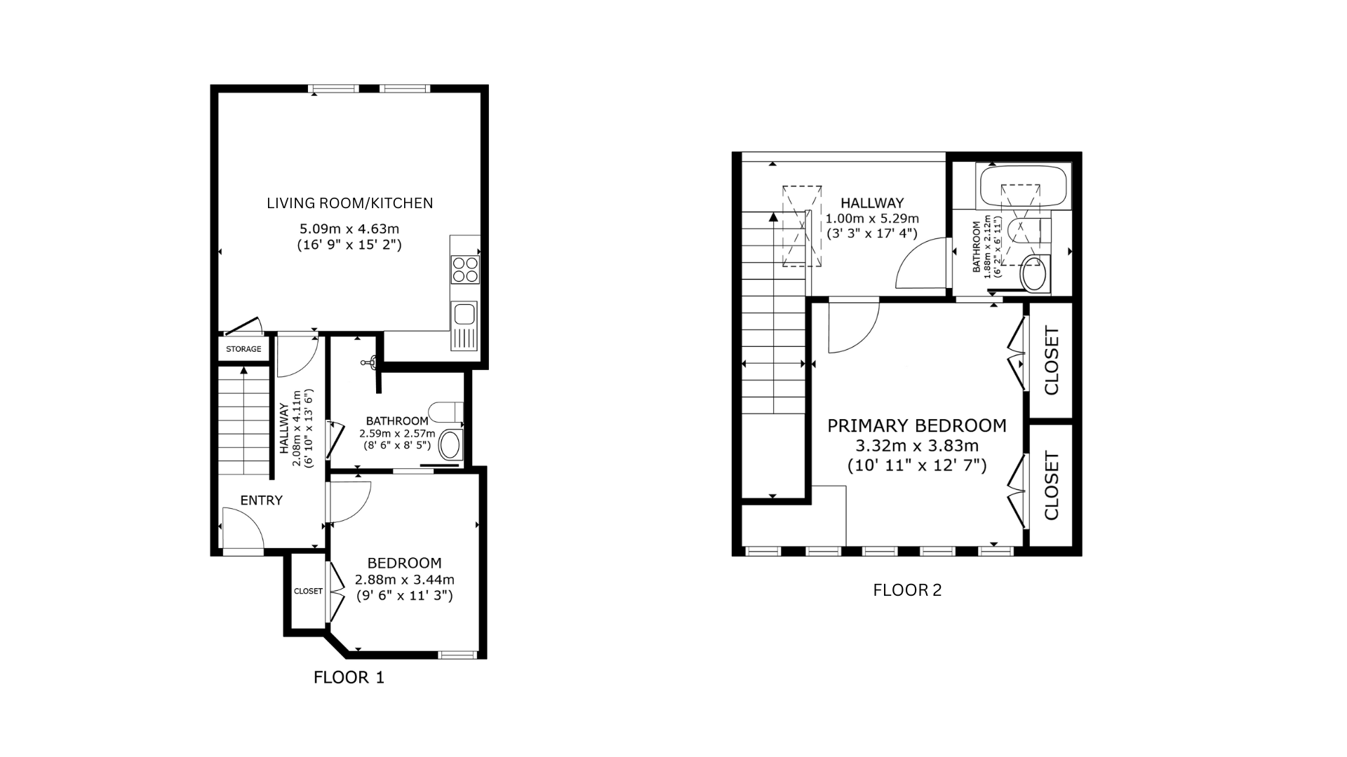
A private front door leads into a bright, inviting hallway and through to the open-plan living, dining and kitchen space. The kitchen is fitted with a range of modern wall and base units, along with a four-ring gas hob, extractor hood, electric oven/grill, washing machine and fridge freezer. A useful under-stair storage cupboard and breakfast bar complete this sociable and well-designed space.
On the ground floor, you will find a generous double bedroom with fitted wardrobes and convenient Jack-and-Jill access to the contemporary shower room, which can also be entered from the hallway.
A wooden staircase leads to the upper landing, where the main bedroom awaits. This serene room features fitted wardrobes and benefits from an en-suite bathroom with Jack-and-Jill access to the landing. The property further enjoys gas central heating and double glazing throughout.
Location
Newington is a vibrant and ever-popular neighbourhood just a short distance from Edinburgh’s City Centre. The area offers an excellent array of local shops, cafés, restaurants and everyday amenities, as well as easy access to numerous University of Edinburgh buildings and George Square. Beautiful green spaces such as The Meadows, Holyrood Park and Arthur’s Seat are all within a pleasant walk, and regular bus services provide convenient links to the City Centre and surrounding areas.
At a glance
LBTT Calculator
Property Features
Property Features
- Charming two-bedroom main-door duplex apartment
- Highly sought-after Newington area of Edinburgh
- Welcoming home in true move-in condition
- Open-plan living, dining and kitchen space
- Generous double bedroom with fitted wardrobes
- Gas central heating and double glazing throughout





















